Planta Baja y 12 Pisos – Unidades de Un Dormitorio Frente con Balcón y Contra Frente
La obra se construyó en un terreno ubicado en la calle Bv. 27 de febrero 1618 de la ciudad de Rosario.
Las dimensiones del lote donde se emplaza son de 8,66 m de frente y 19,10 m de profundidad.
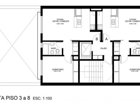
El edificio cuenta con 12 pisos, 19 departamentos, 17 de 1 dormitorio, 2 de 2 dormitorios y 5 cocheras en planta baja.
El sistema constructivo es el tradicional, con estructura de hormigón armado y mampostería de ladrillos comunes en las medianeras y ladrillos cerámicos en el interior.
Los departamentos cuentan con cocina totalmente amueblada con amoblamientos Johnson de primera calidad, cocina y calefón Longvie (instalación para lavarropas automático)
Baño completo con sanitarios Ferrum y grifería Fv cromada.
Habitación con placard completo de piso a techo con todos los interiores y puertas corredizas.
Contamos con varias unidades: Departamentos de 1 dormitorio (frente y contrafrente), 2 dormitorios piso exclusivo, Duplex 1 dormitorio, Duplex 2 dormitorios.







