UBICACIÓN
Sobre calle San Juan entre Paraguay y Corrientes, en una zona estratégica de la ciudad, combina confort, funcionalidad y alto potencial de valorización. Un proyecto residencial de primera calidad, pensado para vivir o invertir con seguridad y proyección.
DESCRIPCION GENERAL
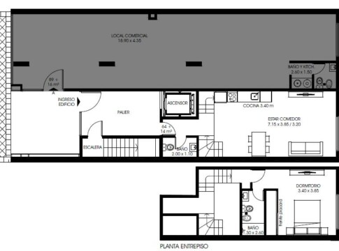
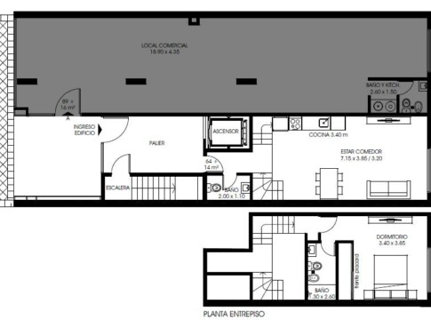
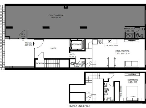
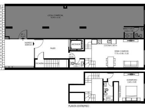
PLANTA BAJA
1 Local comercial vidriado al frente, 1 Dúplex de 1 dormitorio con patio de uso exclusivo.
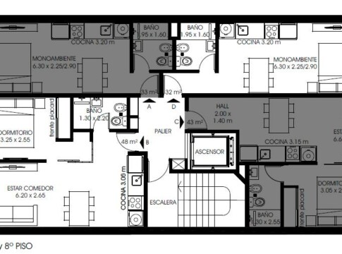
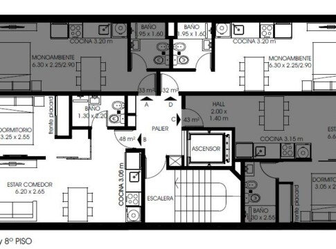
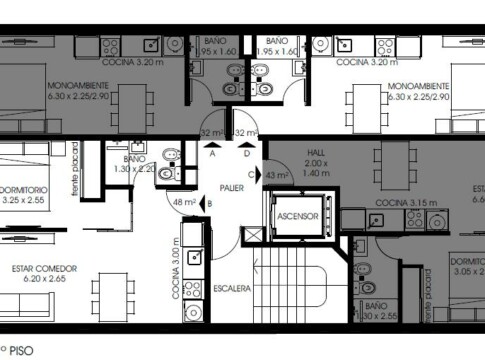
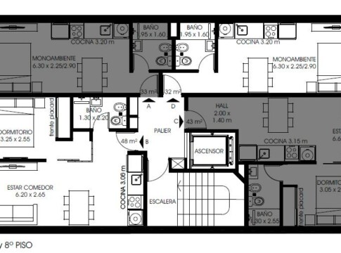
PLANTA PISO 1 AL 8
2 unidades de 1 dormitorio y 2 unidades mono ambientes.
TERMINACIONES
PLANTA BAJA.
Ingreso de categoría con paredes revestidas en madera y piso de porcellanato o granito.
Ingreso a cocheras con portón automático independiente.
Luminarias con sensor de movimiento en espacios comunes.
DEPARTAMENTOS
Frente de placard en dormitorios.
Baños completos con sanitarios línea roca y accesorios instalados, griferías FV o similar, ducha y vanitory.
Pisos y paredes revestidas en baños y balcón.
Piso de madera flotante en estar comedor, dormitorios y pasos.
Paredes enduidas en yeso.
Aberturas exteriores en aluminio línea aluar o similar con doble vidrio con certificación hidrotermica.
Paredes exteriores con certificación hidrotermica de aislación.
Mesadas de cocina de mármol y bacha de acero Johnson con grifería monocomando FV o similar.
Alacenas y bajo mesadas de madera MDF instalados
Cocina a gas y termo tanque eléctrico instalados.
Instalación para aire acondicionados Split en cada ambiente.
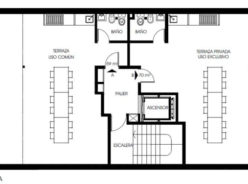
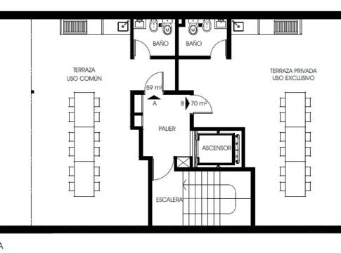
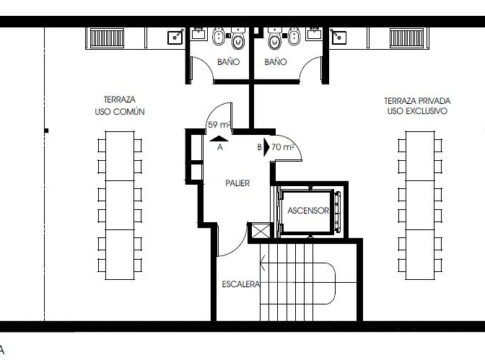
TERRAZA
Terraza de uso común con parrilla.
Baño de uso común.
Terraza de uso exclusivo.
FORMA DE PAGO
Anticipo minimo del 50% y saldo hasta en 30 cuotas, las cuales seran pesificadas y ajustadas al índice de la cámara de la construcción argentina.



























