Se encuentra situado en una importante zona de la ciudad, en la calle Santa Fe entre Rodríguez y Pueyrredón; a pocas cuadras de Bv.Oroño y de la costa ribereña. Con afluencia de gran cantidad de líneas de transporte público hacia los distintos puntos de la ciudad. Próximo a importantes centros educativos, Facultad Ciencias Económicas y Estadísticas, Facultad de Medicina, Ciencias Bioquímicas, Odontología, farmacia de la U.N.R. y Derecho; como así también centros urbanos como el Paseo del siglo, centros de Salud, Museos y centros de actividades culturales y deportivas, y a minutos del microcentro.
CARACTERISTICAS
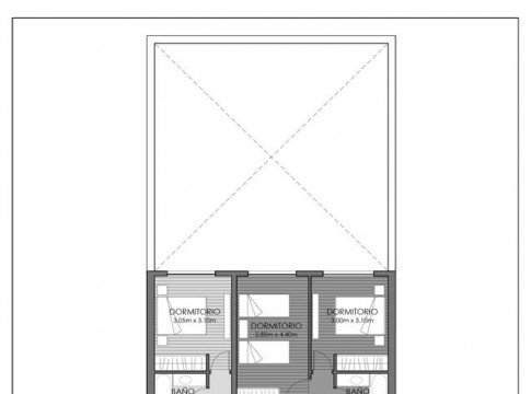
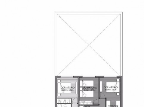
El edificio está compuesto por 10 semipisos de 1 y 2 dormitorios. Todos los departamentos son unidades con ventilación cruzada y amplios balcones al frente, creando así un ambiente contiguo.
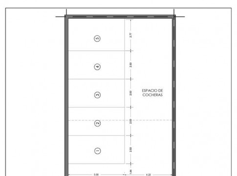
Cocheras opcionales en planta baja con portón automatizado.
TERMINACIONES
• Cielorrasos y paredes en yeso terminados con pintura al látex.
• Aberturas de aluminio blanco línea Módena con protección de cortina de enrollar en los dormitorios y mosquiteros en todas las aberturas.
• Puertas placas reforzadas enchapadas en madera y lustradas, con herrajes de primera calidad.
• Frente de placares de piso a techo con guías de aluminio.
• Pisos porcellanatos en estar, cocina, baño y balcón y pisos flotante en dormitorios.
• Zócalos de madera lustrados en todos los ambientes.
• Muebles de cocina completos: bajo mesada, alacenas, porta microondas, bodeguero, en melamina blanca con filos de aluminio, mesada en granito gris mara o similar, pileta de acero inoxidable Johnson y gritería monocomando FV. Espacio y conexiones para lavarropa.
• En todos los deptos., quedaran instalados, la cocina, calefón y estufas en dormitorios, marca LONGVIE, quedando un pico adicional en estar.
• Instalación de cañerías para futura conexión de equipos split en estar y dormitorios.
• Baño: mesada en mármol beige Sahara o blanco turco con bacha bajo mesada en losa blanca Ferrum, sanitarios blancos de primera calidad, grifería de 1ra calidad y bañera.
• Instalación de cañerías para telefonía y TV cable en todos los ambientes.
• Hall de ingreso con detalles en madera y pisos de porcellanato.





















