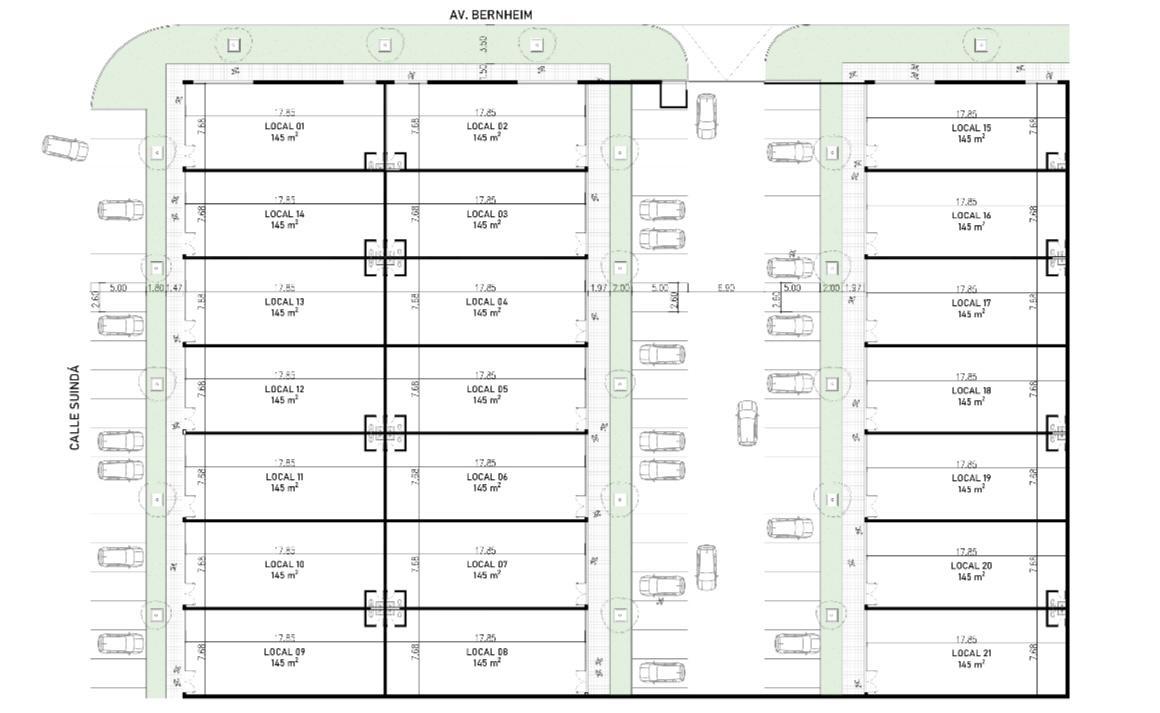
Mercado del Paso:
Local en centro comercial al aire libre con estacionamiento privado, viene a generar un hito comercial en la zona de Tierra Nueva Fisherton, aglomerando distintos rubros comerciales en un punto estratégico, para convertirse en referencia para la nueva zona de condominios en Fisherton.
El proyecto prevé áreas para estacionamiento exterior e interior, con acceso controlado mediante puesto de seguridad. Locales a la calle e internos al estacionamiento.
Locales de 145 m2 con dimensiones ventanal del frente 5.00 x 3.00m de altura. Altura máxima de 6.50m. Altura mínima 4.50m. Piso interior de hormigón llenado
Terminación exterior en ladrillos semi vistos
Muro medianero exterior terminado en pintura impermeable
Terminación interior en revoque fino pintado en latex blanco
Se deja prevista la instalación de 1 aire acondicionado por local comercial
Posibilidad de financiación.
Contáctanos para coordinar una visita.
Código del inmueble: CLO7379789
Encontrá todas nuestras propiedades en: cccarlachiani. com. ar
C.I. Mauro Carlachiani Mat. N° 280
*Toda la información y medidas provistas son aproximadas y deberán ratificarse con la documentación pertinente y no compromete contractualmente a nuestra empresa. Los gastos (Expensas, API, TGI, AGUAS, etc.) expresados, refieren a la última información recabada y deberán confirmarse. Fotografías no vinculantes ni contractuales.















