EDIFICIO SE ENCUENTRA EN EL CORAZÓN DE BARRIO ABASTO , CERRITO ESQ PARAGUAY. Ubicado en pleno barrio del Abasto, a pocas cuadras de Avenida Pellegrini, corredor comercial gastronómico por excelencia de la ciudad, donde encontramos bares, restaurantes, cervecerías, como también supermercados, estaciones de servicio, bancos, instituciones educativas, y todos los rubros comerciales necesarios para tener la comodidad a solo pasos. Muy próximo a tribunales, además de ser Pellegrini una vía importante de acceso a la ciudad con salida rápida por circunvalación, y contar con distintas líneas de transporte. Muy próximo al Parque Independencia, el pulmón verde de la ciudad, ideal para hacer deportes, o tener un espacio donde salir a despejar de la rutina diaria.
Esta compuesto de planta baja y 10 pisos .
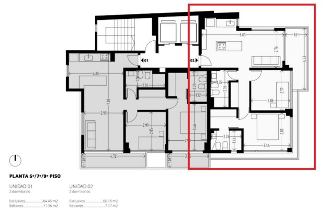
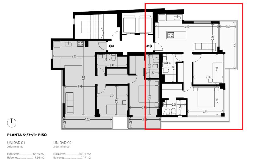
Edificio de PB y 10 pisos. En PB con Cocheras y Local Comercial, 1º Piso de Oficinas y 2º al 10º Piso Departamentos de 1 dormitorio y 2 dormitorios.
El departamento a la venta es de dos dormitorios la frente, 2 baños completos y balcón terraza, placares con frente e interiores terminados. Uno de los dormitorios es en suite. Cocina completa con bajo mesada y alacena con artefactos completos mucho espacio de guardado.Ideal inversores recientemente alquilado.
Código del inmueble: CAP7503949
Encontrá todas nuestras propiedades en: cccarlachiani. com. ar
C.I. Mauro Carlachiani Mat. N° 280
*Toda la información y medidas provistas son aproximadas y deberán ratificarse con la documentación pertinente y no compromete contractualmente a nuestra empresa. Los gastos (Expensas, API, TGI, AGUAS, etc.) expresados, refieren a la última información recabada y deberán confirmarse. Fotografías no vinculantes ni contractuales.
























































































