Código del inmueble: CAP7265177
Encontrá todas nuestras propiedades en: cccarlachiani. com. ar
C.I. Mauro Carlachiani Mat. N° 280
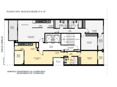
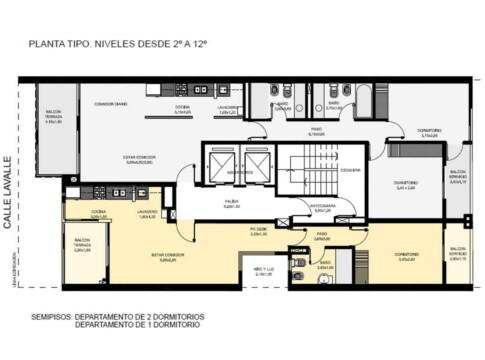
*Toda la información y medidas provistas son aproximadas y deberán ratificarse con la documentación pertinente y no compromete contractualmente a nuestra empresa. Los gastos (Expensas, API, TGI, AGUAS, etc.) expresados, refieren a la última información recabada y deberán confirmarse. Fotografías no vinculantes ni contractuales.

































