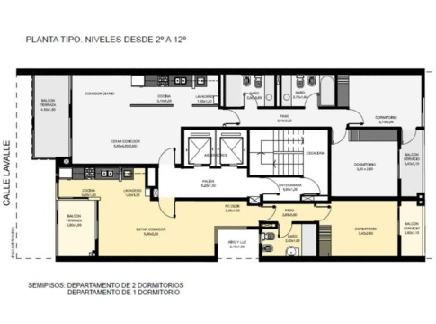
Un edificio ubicado en el corazón de Echesortu, en Lavalle al 1300, semipiso ventilación cruzada, balcón al frente y al contrafrente. Dos niveles Cocheras cubiertas con rampas fijas (no se utiliza medios mecánicos). Hall de ingreso amplio. 12 pisos semipisos de 1 y 2 dormitorios, el piso 13 es exclusivo de 3 dormitorios con terraza y parrillero exclusivo.
En la terraza se ubica el parrillero y solarium de uso común. Cuenta con 2 ascensores, recubierto de acero y espejo.
Los departamentos de dos dormitorio tiene cocina separada , con alacena aérea y bajo mesada completa de primera calidad, cocina de acero inoxidable domec, caldera dual individual, mesada de mármol de granito, lavadero separado. El estar comedor es muy amplio y luminoso con vista al frente de Lavalle, salida directa al balcón terraza por medio de amplios ventanales de aluminio anodizado natural. el estar comedor como los dormitorios tiene piso de madera flotante de alta gama. Los dormitorios dan al contrafrente, se entregan con placares e interiores completos, desde los dormitorios se accede aun balcón que da al contrafrente. El departamento esta provisto de dos baño completo con ducha, muy amplio.
La calefacción esta pensada mediante radiadores (se entregan con caldera pero sin radiadores)
El departamento de dos dormitorio se desarrolla en 75m2 exclusivos cubiertos con un total de 12,60 m2 semicubiertos de balcones lo que hace un total de 87,60 m2 para ser vividos.
Listo para ESCRITURAR…
Código del inmueble: CAP6173872
Encontrá todas nuestras propiedades en: cccarlachiani. com. ar
C.I. Mauro Carlachiani Mat. N° 280
*Toda la información y medidas provistas son aproximadas y deberán ratificarse con la documentación pertinente y no compromete contractualmente a nuestra empresa. Los gastos (Expensas, API, TGI, AGUAS, etc.) expresados, refieren a la última información recabada y deberán confirmarse. Fotografías no vinculantes ni contractuales.



































