Condominio Bagua: Ruta 9 y Suipacha.
Bagua es un Condominio con unidades de 1, 2 y 3 dormitorios, además de sector de oficinas, local con ingreso independiente y cocheras subterráneas. Pensado para llevar una vida urbana en un entorno natural rodeado de verde, el proyecto hace énfasis en ambientes hiper amplios, con mucho ingreso de luz natural, vistas despejadas y múltiples áreas comunes para disfrutar de eventos sociales (SUM y Quincho semicubiertos con parrilleros), zonas verdes con mobiliario urbano y una hermosa piscina con excelente ubicación para disfrutar los días de verano.
La ubicación del proyecto es estratégica, sobre ruta 9, a pocos metros de calle Galindo que genera acceso y salida a la autopista. Además esta muy cercano al centro de Funes y zonas gastronómicas.
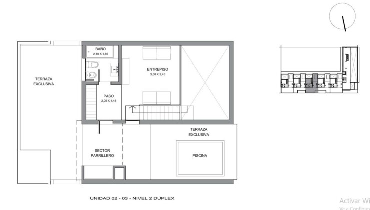
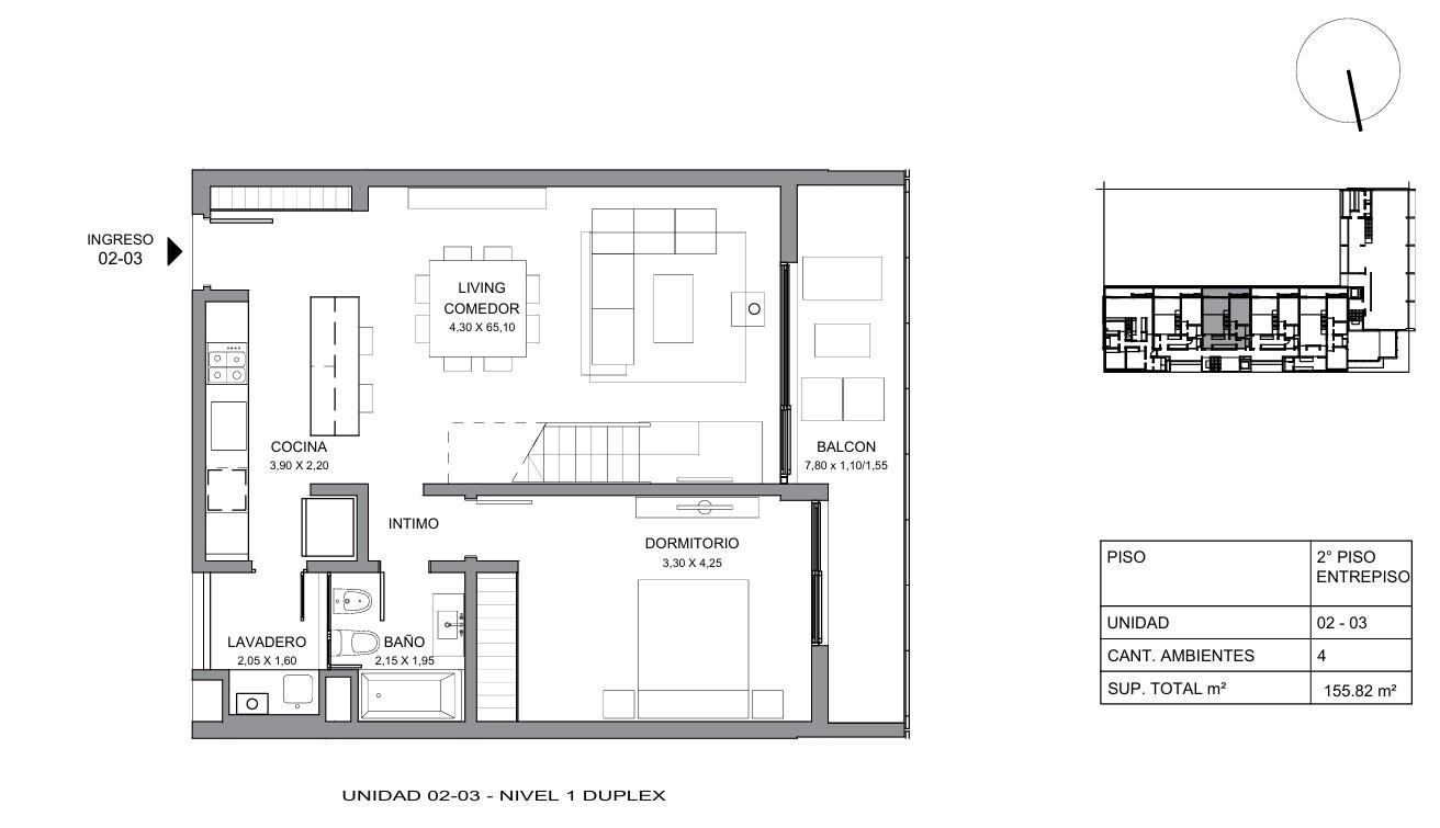
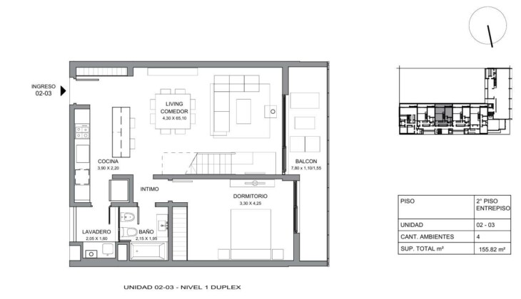
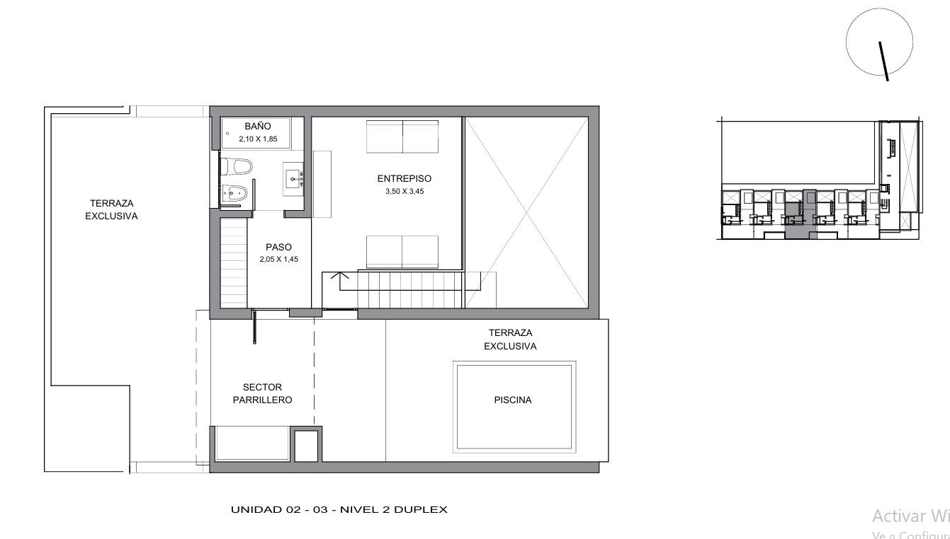
La unidad que ofrecemos se trata de un Departamento dúplex de 2 dormitorios de gran superficie, con un diseño moderno tipo loft, techos de hormigón visto, pisos de porcelanato, ubicado al frente, con orientación Oeste. Cocina integrada al living comedor con isla con mesada de silestone, bacha de acero inoxidable, grifería monocomando de diseño, muebles de alacenas y bajo mesada, caldera, horno y anafe empotrados. En el primer nivel de la unidad cuenta con un baño completo, lavadero, un dormitorio, living comedor con salida al balcón corrido y mediante una cómoda escalera se accede al 2do nivel donde encontramos un baño completo y el 2do dormitorio, además de salida a la terraza privada con parrillero y pileta privada.
Posibilidad de cochera.
Contáctanos para coordinar una visita.
Código del inmueble: CAP7450358
Encontrá todas nuestras propiedades en: cccarlachiani. com. ar
C.I. Mauro Carlachiani Mat. N° 280
*Toda la información y medidas provistas son aproximadas y deberán ratificarse con la documentación pertinente y no compromete contractualmente a nuestra empresa. Los gastos (Expensas, API, TGI, AGUAS, etc.) expresados, refieren a la última información recabada y deberán confirmarse. Fotografías no vinculantes ni contractuales.





























