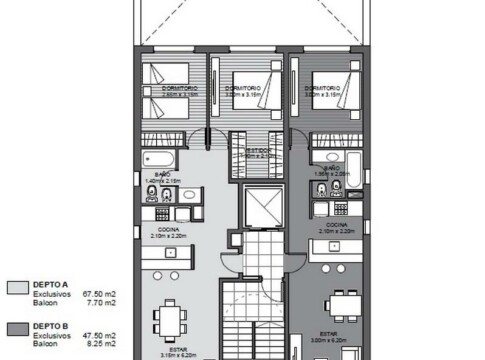
Dpto de 2 dormitorios al frente con balcón. Cocheras opcionales.
Edificio eléctrico sin provisión de gas.
TERMINACIÓNES:
– Estructura de hormigón armado.
– Carpintería exterior de aluminio.
– Puertas placa laminadas – Marco de madera.
– Pisos porcelanato primera calidad
– Contramarco y zócalos laminados.
– Baños equipados con losa color blanca y placa ducha.
– Grifería de 1° calidad.
– Muebles de cocina laminados con detalles de aluminio y vidrio.
– Mesada de granito con bacha simple en acero inoxidable.
– Frente de placard laminado y con detalles en aluminio.
– Cañeria para TV por cable y telefonía.
– Barandas en vidrio doble laminado.
?
?
EDIFICIOS EFICIENTES ENÉRGICAMENTE:
Colectores solares para el pre calentado de agua.
Muros compuestos por ladrillos tipo “Retak”, que aumentan la aislación térmica y acústica.
Cerramientos exteriores con aislantes térmicos de poliestireno extendido.
Aberturas con doble vidriado hermético (DVH) para mayor control térmico.
Iluminación de palieres e ingresos mediante luminarias LED.
Código del inmueble: CBU57991 AP6301066
Encontrá todas nuestras propiedades en: cccarlachiani. com. ar
C.I. Mauro Carlachiani Mat. N° 280
*Toda la información y medidas provistas son aproximadas y deberán ratificarse con la documentación pertinente y no compromete contractualmente a nuestra empresa. Los gastos (Expensas, API, TGI, AGUAS, etc.) expresados, refieren a la última información recabada y deberán confirmarse. Fotografías no vinculantes ni contractuales.












































