Ubicación privilegiada sobre calle Moreno a pocas cuadras del río Paraná y del Bv. Oroño. Los departamentos se abren al norte aprovechando la orientación y las vistas directas al río e islas. Planta baja integrada al barrio con expansión y espacios verdes.
Unidades
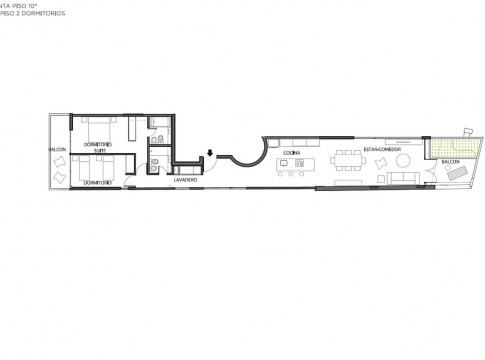
Semipisos de 2 dormitorios.
Pisos exclusivos de 3 dormitorios.
Triplex.
Características generales
Ingreso hall principal en doble altura.
Local comercial en planta baja con expansión a la calle.
Espacios para estacionar: capacidad para 33 vehículos con montacoches.
Balcón-terraza frente y contrafrente en todas las unidades.
Terrazas verdes.
Quincho, SUM, piscina y solárium.
Características de las unidades
Interiores de hormigón visto.
Pisos de madera de ingeniería en cocina, estar y dormitorios.
Aberturas de aluminio negro con vidrios DVH tonalizados gris.
Dormitorio en suite con vestidor.
Baño en suite con hidromasaje.
Placares completos.
Baños totalmente equipados, mesada y piso de mármol de Carrara.
Cocina equipada con horno y anafe eléctrico, mesadas de Silestone blanco o Granito Giallo Marfil.
Calefacción por piso radiante.
Pre instalación de aire acondicionado.
Iluminación: artefactos de balcones, tomas y llaves.
Terraza verde con riego artificial.












